Luftbildservice Foto/Video/Inspektionsflüge mit der Drohne

Luftbildservice Südwest

by WR Photography

Orthomosaik - Fassaden oder Dachinspektion mit der Drohne

Mithilfe von photogrammetrischen Berechnungsverfahren, erstellen wir aus allen Einzelfotos ein sogenanntes Orthomosaik – vergleichbar mit einem Handypanorama. Damit ist es uns möglich die gesamte Erhebungsfläche in einem einzigen Bild zu erfassen. Bilder lassen sich bis 2000% vergrößern.

Aufgaben einer Inspektion per Drohne

Analyse vom Zustand der begutachteten Fläche:

  • Risse

  • Lose/Gebrochene Dachziegel
  • Wasseransammlung / Wasserschaden

  • Verschmutzungen / Verwitterungen

  • Für Landwirtschaft: Wildschäden, Dürreschäden, Überschwemmung.

Gründliche Dokumentation von Schäden:

  • Hagelschaden

  • Sturmschaden

  • Feuerschaden

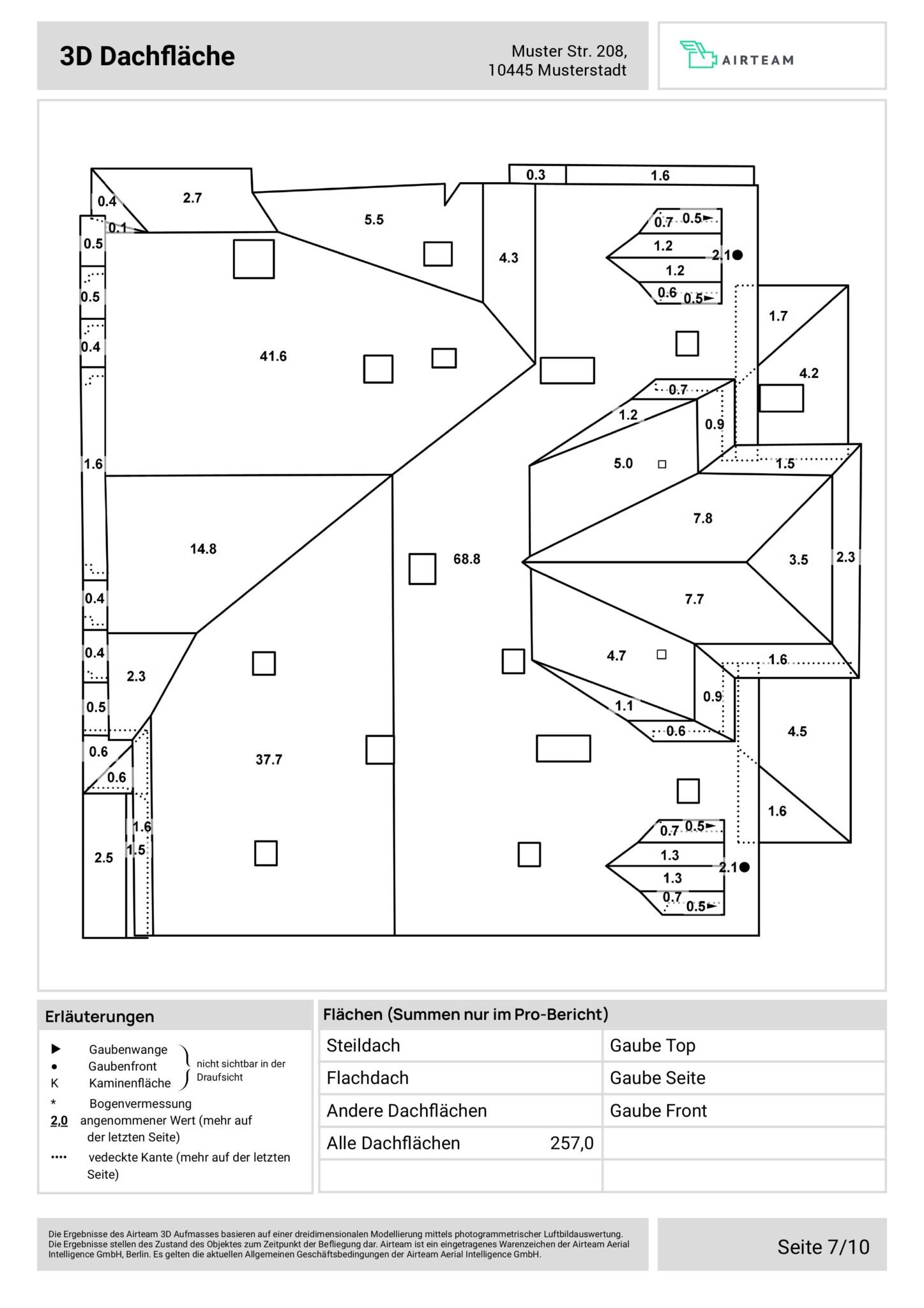
  • Anfertigung von detaillierten 3-D-Modellen

  • eine detaillierte Baudokumentation für Bauträger

  • Dokumentationen für die Versicherung

  • Anfertigung eines kompletten Dachaufmaßes, relevant im Rahmen von Renovierungsarbeiten

  • Bauplanung

  • etc.

Inspektion mittels Drohne: Die Kosten im Überblick

Die Kosten einer Inspektion mit Hilfe einer Drohne hängt von unterschiedlichen Faktoren ab, deshalb können die Kosten nicht genau beziffert werden. Sowohl die Lage der Immobilie als auch die Größe und deren Höhe beeinflussen die Kosten einer Inspektion. Auch die Form des Daches und die verschiedenen Dachaufbauten müssen zur Kostenberechnung mit einkalkuliert werden sowie die Zeit, die benötigt wird, um die entstandenen Bilder im Anschluss aufzuarbeiten und auszuwerten.

Dachschaden

Mit Airteam und mir  können sie Dächer in weniger als 15 Minuten inspizieren und vermessen.

Egal, ob Steildach oder Flachdach, Einfamilienhaus, Kirche oder Logistikhalle.

Bleiben Sie in Zukunft mit beiden Beinen am Boden und die Drohne erledigt die Arbeit für Sie.

Inspektionen mit Drohne – moderne Technik für mehr Erfolg

Das Dach oder Fassadeninspektion mithilfe einer Drohne wird immer beliebter.

Abhängig von der Höhe und der Bauform des Gebäudes können mittels einer Drohne viele Arbeiten nicht nur sicherer, sondern auch schneller und komfortabler durchgeführt werden.

Einsatzbereiche von Drohnen bei der Dachinspektion

Drohnen können bei der Untersuchung der verschiedensten Gebäude eingesetzt werden. Da sie eine hohe Flughöhe erreichen und eine gute Stabilisierung im Flug möglich ist, können Drohnen nicht nur bei Ein- oder Mehrfamilienhäusern, historischen Gebäuden und Kirchen zum Einsatz kommen, sondern auch bei Industrieanlagen. Je höher das Gebäude und je unübersichtlicher der Dachaufbau, desto stärker lohnt sich der sichere Einsatz einer Drohne. Deshalb setzten Privatpersonen und Unternehmen immer häufiger auf eine Dachinspektion per Drohne.

Warum überhaupt eine Drohne einsetzen?

Natürlich stellen sich nun viele Kunden die Frage warum eine Drohne zum Einsatz kommen muss, wo doch seit vielen Jahren die Dachinspektion auch ohne dieses Hilfsmittel erledigt werden konnte. Diese Frage lässt sich aber sehr leicht beantworten, da eine Dachinspektion mittels einer Drohne mit deutlich weniger personellem Aufwand und geringeren Gefahren verbunden ist.
Vor allem bei Mehrfamilienhäusern oder größeren Gebäuden ist eine herkömmliche Dachinspektion mit enormem Aufwand verbunden.

Die Vorteile des Drohneneinsatzes
Einer der wichtigsten Vorteile sind die geringeren Kosten einer Inspektion per Drohne, denn abhängig von der Höhe des Gebäudes und der Komplexität des Daches kann eine Begehung und Kontrolle vor Ort mit enormem Aufwand und Gefahren verbunden sein. Durch eine Drohe lässt sich jedoch das Risiko für Mitarbeiter senken sowie die Zeit, die eine Inspektion in Anspruch nehmen würde, minimieren. Durch Inspektion mittels einer Drohe kann man somit Schäden ohne Gefahr für Leib und Leben effektiv begutachten.

Starten Sie jetzt und profitieren Sie von einer umfassenden Inspektion mittels Drohne

Möchten Sie Ihr Dach oder Fassade kontrollieren lassen, fordern Sie einfach hier ein individuelles Angebot an. Wir erstellen entsprechend Ihrer Vorgaben und Wünsche ein passendes und individuelles Angebot und sorgen somit für eine schnelle und zuverlässige Reaktion auf Ihre Anfrage.